Publish your products
Fireguard MFW (Moveable Fire Wall)
Fireguard MFW (Moveable Fire Wall)
Fireguard MFW (Moveable Fire Wall)
    Won-Door

    Fireguard MFW (Moveable Fire Wall)

    The Won-Door FireGuard MFW (Movable fire wall) product is U.L. Certified as meeting the criteria required by ANSI/UL263 (ASTM E119).  When the building code restricts the size of openings in a Fire Barrier, the FireGuard MFW provides a viable solution.

    The FireGuard MFW is available in the following U.L. ratings: MFWI (1-hour) or MFWII (2-hour).

    2021 IBC - 707 Fire Barriers

    707.6 Exception 3:  Openings shall not be limited to 156 square feet (15m²) or an aggregate width of 25 percent of the length of the wall where the opening protective has been tested in accordance with ASTM E119 or UL 263 and has a minimum fire-resistance rating not less than the fire-resistance rating of the wall.
    *Increased custom heights & widths available with AHJ approval.

    Specification
    • Unique features of this fire door include:

      HD UNITIZED TRACK SYSTEM

      Heavy Duty Unitized Track System (HDUTS) eliminates the layers of plywood and drywall found in conventional accordion fire door headers.

      CODE COMPLIANCE

      Won-Door FireGuard MFWI & MFWII comply with ASTM E119 & ANSI/U.L. 263

      MOTOR DRIVE SYSTEMS

      Automatic closing system listed in accordance with U.L. 864

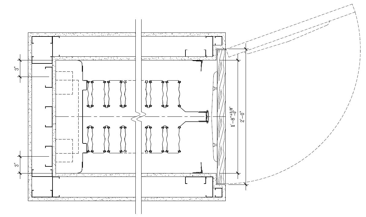
      STORAGE POCKETS

      Doors require 1'-8" wide pockets (For pocket depth use the Stack icon below product downloads)

      HEIGHT & WIDTH RESTRICTIONS

      Won-Door FireGuard MFWI & MFWII doors are U.L. approved for openings up to 10'-0" in height & 30'-0" in width. For increased heights and widths, please contact your Local Sales Representative.

      POCKET COVER DOOR & BUMPER

      Pocket cover door & bumper supplied by others.


    Technical specification
    • Unique ref.fireguard-mfw-moveable-fire-wall
    • Product familyDoors
    • Product groupFire Doors
    • TypeObject (single object)
    • Date of publishing2024-07-01
    • Edition number1
    Related
    • Designed inUnited States
    • Manufactured inUnited States
    Classification
    • BIMobject CategoryDoors - Sliding
    • Uniclass 2015 CodePr_30_59_24_28
    • Uniclass 2015 DescriptionFire doorsets
    • CSI MasterFormat 2014 Code08 35 13.23
    • CSI MasterFormat 2014 TitleAccordion Folding Fire Doors
    • OmniClass Number23-17 11 31
    • OmniClass TitleFire Doors

    Region availability

    Europe Asia North America Africa South America Oceania
    Åland Islands
    Afghanistan
    Anguilla
    Algeria
    Argentina
    American Samoa
    Albania
    Armenia
    Antigua and Barbuda
    Angola
    Bolivia
    Australia
    Andorra
    Azerbaijan
    Aruba
    Benin
    Brazil
    Cook Islands
    Austria
    Bahrain
    Barbados
    Botswana
    Chile
    Federated States of Micronesia
    Belarus
    Bangladesh
    Belize
    Burkina Faso
    Colombia
    Fiji
    Belgium
    Bhutan
    Bermuda
    Burundi
    Ecuador
    French Polynesia
    Bosnia and Herzegovina
    British Indian Ocean Territory
    British Virgin Islands
    Cameroon
    Falkland Islands (Islas Malvinas)
    Guam
    Bulgaria
    Brunei
    Canada
    Cape Verde
    French Guiana
    Kiribati
    Croatia
    Cambodia
    Caribbean Netherlands
    Central African Republic
    Guyana
    Marshall Islands
    Cyprus
    China
    Cayman Islands
    Chad
    Paraguay
    Nauru
    Czech Republic
    Christmas Island
    Collectivity of Saint Martin
    Comoros
    Peru
    New Caledonia
    Denmark
    Cocos (Keeling) Islands
    Costa Rica
    Côte d'Ivoire
    Suriname
    New Zealand
    Estonia
    Georgia
    Cuba
    Democratic Republic of the Congo
    Uruguay
    Niue
    Faroe Islands
    Hong Kong
    Curaçao
    Djibouti
    Venezuela
    Norfolk Island
    Finland
    India
    Dominica
    Egypt
    Northern Mariana Islands
    France
    Indonesia
    Dominican Republic
    Equatorial Guinea
    Palau
    Germany
    Iran
    El Salvador
    Eritrea
    Papua New Guinea
    Gibraltar
    Iraq
    Greenland
    Eswatini
    Pitcairn Islands
    Greece
    Israel
    Grenada
    Ethiopia
    Samoa
    Guernsey
    Japan
    Guadeloupe
    Gabon
    Solomon Islands
    Hungary
    Jordan
    Guatemala
    Ghana
    Timor-Leste
    Iceland
    Kazakhstan
    Haiti
    Guinea
    Tokelau
    Ireland
    Kuwait
    Honduras
    Guinea-Bissau
    Tonga
    Isle of Man
    Kyrgyzstan
    Jamaica
    Kenya
    Tuvalu
    Italy
    Laos
    Martinique
    Lesotho
    United States Minor Outlying Islands
    Jersey
    Lebanon
    Mexico
    Liberia
    Vanuatu
    Latvia
    Macau
    Montserrat
    Libya
    Wallis and Futuna
    Liechtenstein
    Malaysia
    Nicaragua
    Madagascar
    Lithuania
    Maldives
    Panama
    Malawi
    Luxembourg
    Mongolia
    Puerto Rico
    Mali
    Malta
    Myanmar (Burma)
    Saint Kitts and Nevis
    Mauritania
    Moldova
    Nepal
    Saint Lucia
    Mauritius
    Monaco
    North Korea
    Saint Pierre and Miquelon
    Mayotte
    Montenegro
    Oman
    Saint Vincent and the Grenadines
    Morocco
    Netherlands
    Pakistan
    Saint-Barthélemy
    Mozambique
    North Macedonia
    Palestine
    Sint Maarten
    Namibia
    Norway
    Philippines
    The Bahamas
    Niger
    Poland
    Qatar
    Trinidad and Tobago
    Nigeria
    Portugal
    Saudi Arabia
    Turks and Caicos Islands
    Republic of the Congo
    Romania
    Singapore
    U.S. Virgin Islands
    Reunion
    Russia
    South Korea
    United States
    Rwanda
    San Marino
    Sri Lanka
    Saint Helena
    Serbia
    Syria
    São Tomé and Príncipe
    Slovakia
    Taiwan
    Senegal
    Slovenia
    Tajikistan
    Seychelles
    Spain
    Thailand
    Sierra Leone
    Svalbard and Jan Mayen
    Türkiye
    Somalia
    Sweden
    Turkmenistan
    South Africa
    Switzerland
    United Arab Emirates
    South Sudan
    Ukraine
    Uzbekistan
    Sudan
    United Kingdom
    Vietnam
    Tanzania
    Vatican City
    Yemen
    The Gambia
    Togo
    Tunisia
    Uganda
    Western Sahara
    Zambia
    Zimbabwe
    Common.Footer.ValueProp.Image.AltText

    Design App for Revit

    Load families straight into your Revit model in one click

    Get a place to access new objects easier, store your Revit families and collaborate with your team.

    • CheckmarkWork directly with BIM objects next to Revit
    • Checkmark 2GB Cloud storage - store your Revit content
    • Checkmark Get embodied-carbon LCA (A1-A3) straight from Revit