Publish your products
Triotherm+ System - Ventilated Facade
blaugelb

Triotherm+ System - Ventilated Facade

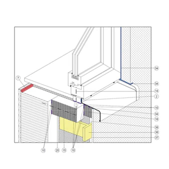
Complete planning reliability with the blaugelb Triotherm+ system. Install anywhere and use any seal – and still obtain a tried and tested result. Placing windows into the insulation base and therefore integrating them directly into the cladding system represents a major step towards energy efficiency in window design. With the blaugelb Triotherm+ system, this can be achieved without much cost or effort and without restricting the planning or further execution. A tried and tested system which is easy to fit and creates added value in all aspects of windows. With the blaugelb Triotherm+ system, you are free to choose the type of seal you use, although this choice should always be made on a professional basis. For example, it is down to the fitter or the planner to decide which products are used for the window seal. The individual profiles have an innovative dovetail joint, which means that transporting them to the construction site is no longer a major exercise in logistics. The compact dimensions of the profiles combined with the sturdy dovetail joint allow them to be lengthened effortlessly at all times, even for larger sized windows. Not only does the blaugelb Hybrid Polymer Power Fix keep blaugelb Triotherm+ profiles in place until they are bolted to the wall, it also provides an increased measure of security and sealing quality between the wall and blaugelb Triotherm+ profiles, even where the substrate is not 100% level. The blaugelb Frame Screw Fix FK-T30 anchors blaugelb Triotherm+ profiles securely to the masonry. It allows the blaugelb Pre-Wall Installation system to be attached to the load-bearing structure with a safe mechanical fixing.

Specification
  • https://www.das-neue-blaugelb.de/no_cache/produktansicht/triotherm-profile.html
Technical specification
  • Unique ref.blaugelb-ventilated-facade
  • Product familyWindow
  • Product groupPre-wall installation system
  • TypeShowcase (model)
  • Date of publishing2021-06-10
  • Edition number1
  • Height (mm)85
  • Width (mm)1175
Related
  • Material mainEPS
  • Designed inGermany
  • Manufactured inGermany
  • Weight Net (Kg)1.05
Classification
  • BIMobject CategoryWindows - Double Hung Windows

Region availability

Europe
Germany
Common.Footer.ValueProp.Image.AltText

Design App for Revit

Load families straight into your Revit model in one click

Get a place to access new objects easier, store your Revit families and collaborate with your team.

  • CheckmarkWork directly with BIM objects next to Revit
  • Checkmark 2GB Cloud storage - store your Revit content
  • Checkmark Get embodied-carbon LCA (A1-A3) straight from Revit